Listings
1 Brittany Way | Columbia, SC 29212
Subdivision: BRITTANY
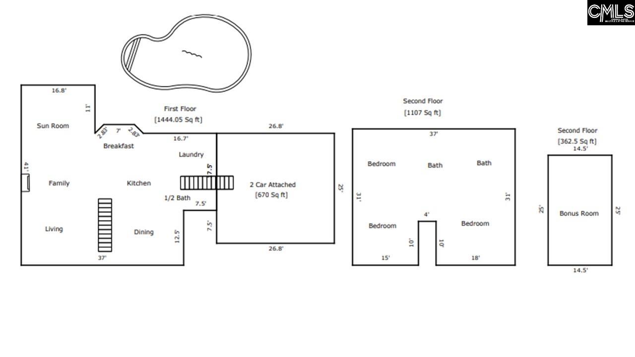
BACKYARD OASIS ALERT!!! This beautifully renovated all-brick home in the desirable Brittany neighborhood features a stunning gunite saltwater pool, nearly half an acre of privacy, and HGTV-style renovations throughout! PRICED $10,000 BELOW RECENT APPRAISAL! 1 Brittany Way, a meticulously maintained 4-bedroom 2.5 bath is located in the award-winning Lexington/Richland 5 School District.Situated on a spacious 0.47-acre lot, featuring beautiful modern updates and timeless character you do not find in newer construction. The 2023 renovated kitchen offers a fresh HGTV-inspired design with warm tones, updated finishes including newer stainless steel appliances, farmhouse sink and a large center island with eat-in kitchen space and LOTS of Storage! The modern lighting flows perfectly into the living and entertaining spaces, making it great to entertain friends and family! The primary ensuite was also fully renovated in 2023, creating a spa-like retreat with large closets and tall tray ceilings. Step into the large sunroom / all-season room, the perfect place to relax year-round while overlooking the fully fenced backyard and your private inground gunite saltwater pool — truly a backyard oasis ideal for entertaining, summer pool days, and quiet evenings at home. This solidly built 1986 all-brick home combines craftsmanship and durability rarely found today, set in a neighborhood known for its custom homes, wide streets, and large half-acre lots — not cookie-cutter living. Additional features include: * Oversized side-entry 2-car garage * New roof (2019) * Encapsulated crawlspace (2023) * Water filtration system (2023) * Air filtration system (2026) * Fresh paint and updated lighting throughout. If you are looking for space, quality construction, modern updates, and a resort-style backyard, 1 Brittany Way is a must-see. See the walk-through video to appreciate the details! Disclaimer: CMLS has not reviewed and, therefore, does not endorse vendors who may appear in listings.
PROPERTY DETAILS
- Property Type: RES
- Property Sub Type: Colonial,Traditional
- Bedrooms: 4
- Bathrooms: 1 Half
- Bathrooms: 3
- Sqft: 3,000
- Acres: 0.49
- Levels: 2
- Garage Spaces: 2
- Garage Type: -
school information
- Elementary School: Nursery Road
- Middle School: Irmo
- High School: Irmo
LOCATION
- City: Columbia
- Area: 3,000
- County: Lexington
- Subdivision: BRITTANY
- Zip: 29212
Map View
Listing courtesy of eXp Realty LLC
This information is believed to be accurate, but without any warranty.

