Listings
703 Savage Street | Camden, SC 29020
Subdivision: EDGEWOOD
Welcome to 703 Savage St, a home that has been tastefully updated to meet your needs. The interior has been refreshed with a coat of fresh paint, giving it a clean and modern look. The kitchen is equipped with new appliances, all of which are stainless steel, adding a touch of elegance and durability. The home also boasts a new roof, ensuring you'll be protected from the elements for years to come. The property features a fenced-in backyard, providing a safe space for outdoor activities. This home at is a perfect blend of comfort and convenience, ready for you to make it your own.. Included 100-Day Home Warranty with buyer activation Disclaimer: CMLS has not reviewed and, therefore, does not endorse vendors who may appear in listings.
PROPERTY DETAILS
- Property Type: RES
- Property Sub Type: Traditional
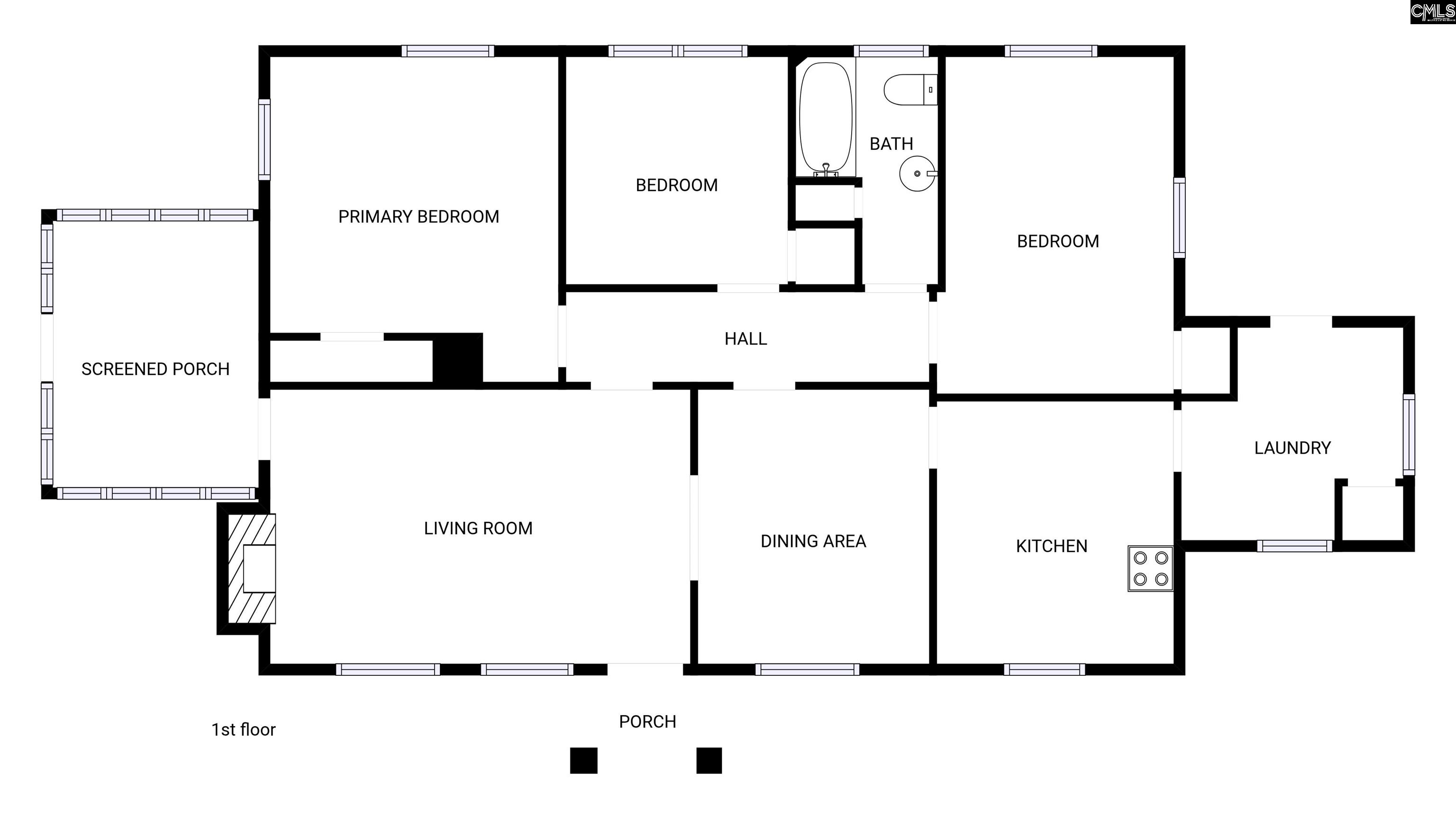
- Bedrooms: 3
- Bathrooms: - Half
- Bathrooms: 1
- Sqft: 1,181
- Acres: 0.6
- Levels: 1
- Garage Spaces: -
- Garage Type: -
school information
- Elementary School: Camden
- Middle School: Camden
- High School: Camden
LOCATION
- City: Camden
- Area: 1,181
- County: Kershaw
- Subdivision: EDGEWOOD
- Zip: 29020
Map View
Listing courtesy of OpenDoor Brokerage LLC
This information is believed to be accurate, but without any warranty.

